Family Encyclopedia >> Home & Garden

DIY Cottage-Style Headboard: Simple Step-by-Step Build for King Beds

Introduction

DIY Cottage-Style Headboard: Simple Step-by-Step Build for King Beds

We've crafted this headboard inspired by a beloved design from a top home decor catalog. As experienced DIY builders, we love how straightforward it is: attach standard-size lumber to a large plywood panel, then finish with crisp white paint for that timeless cottage charm.

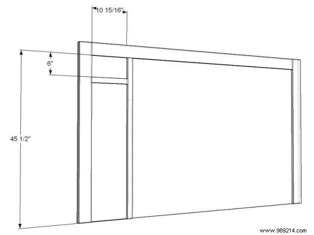
Step 1

DIY Cottage-Style Headboard: Simple Step-by-Step Build for King Beds

Cut and Dry Fit

Cut all pieces to size (using king-size dimensions for this project). Lay them out on a flat surface to ensure everything aligns perfectly before assembly.

Step 2

DIY Cottage-Style Headboard: Simple Step-by-Step Build for King Beds

Attach the Outer Pieces

Apply adhesive to the back of a side piece (49" 1x4) and position it on the left edge of the MDF plywood. Repeat for the right side. Next, apply adhesive to the 73" 1x4 and attach it to the top edge, nesting it between the side boards.

Step 3

DIY Cottage-Style Headboard: Simple Step-by-Step Build for King Beds

Attach the Inner Pieces

Apply adhesive to the back of an interior horizontal board and position it along your pencil marks on the plywood. Add adhesive to an interior vertical board, place it atop the horizontal one to match the marks, and repeat until all boards are secured.

Step 4

DIY Cottage-Style Headboard: Simple Step-by-Step Build for King Beds

Finish and Paint

Allow the adhesive to fully set, then fill gaps with wood filler (follow manufacturer guidelines for drying). Sand smooth, remove all dust, prime, and paint for a professional finish.

Step 5

DIY Cottage-Style Headboard: Simple Step-by-Step Build for King Beds

Attach to the Bed Frame

Measure from the floor to your bed frame's bolt holes and note the spacing. Drill matching holes in the headboard large enough for the bolts. Secure with bolts, nuts, and washers, tightening firmly for stability.